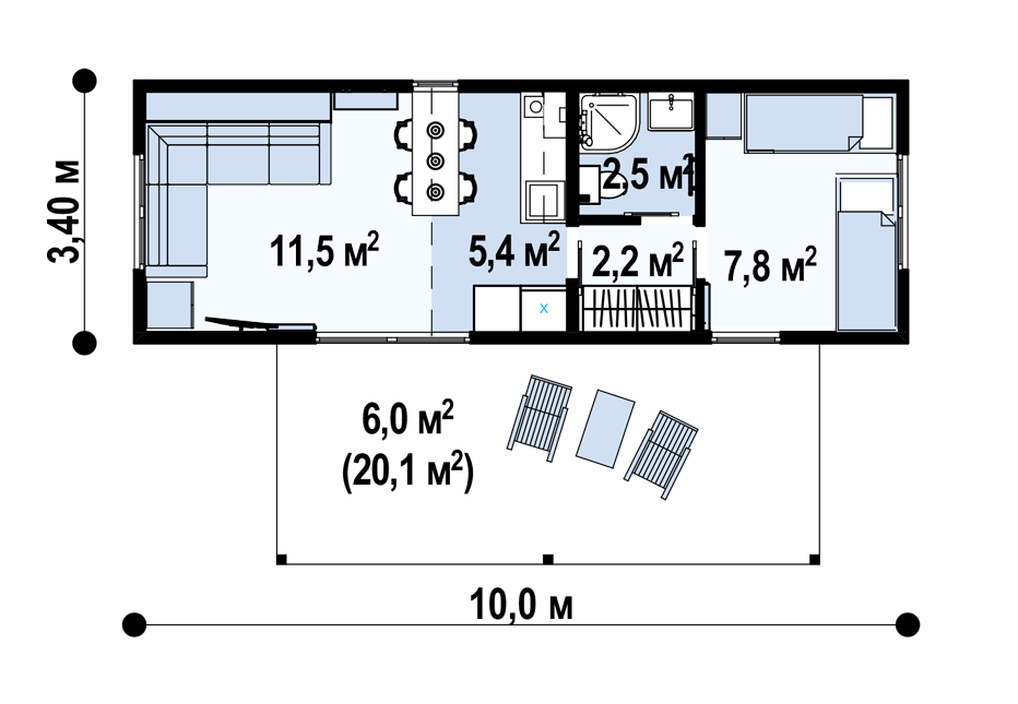
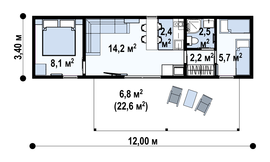
Модульные дома фабричного производства
Хотите познакомиться ближе
с реальным модульным домом? Заполните данные ниже.
Как получить
1 Заключение договора
2 Изготовление дома на заводе
3 Установка на участке
4 Въезд в новый дом
Что входит в стоимость
- Модульный дом, произведенный и собранный на заводе, включая кровлю, внешнюю и внутреннюю отделку под ключ;
- разведенная электрика с розетками и выключателями;
- оборудованный санузел (бойлером, душевой кабиной, унитазом).
Вы получите дом полностью готовый для комфортной жизни.
Также у нас можно заказать:
- Фундамент
- Террасу к дому
- Навес под авто
- Бурение скважины
- Установку септика
Коммуникации
Отопление:
Кондиционер, конвектора
Электроснабжение:
От генератора, от общей электросети
Водоснабжение:
от скважины
Водоотведение:
Септик производительностью 0,6 - 2,2 м3/сутки
5 Квт энергии достаточно для поддержания комфортной температуры и одновременной работы всех электроприборов в доме
Остались вопросы?
Свяжитесь с нами, найдем рациональное решение
Модульные дома под ключ
Быстрые в строительстве, мобильные, компактные, надежные — это модульные дома. Цена, также важная приятная составляющая этих домов.
Хотите проводить больше свободного времени на свежем воздухе уже через месяц? Это реально!
Отдых на свежем воздухе – тот редкий случай, когда приятное и полезное дополняют друг друга. Кажется, мелочь, а риск заболеть выше если человек не отдыхает на природе. Не откладывайте на потом здоровый образ жизни!
Построить дом для загородной жизни можно за 1 месяц
Так быстро - как это возможно?
Пока на вашем участке будут проходить работы по устройству фундамента, сам модульный дом будет производиться на заводе из каркасных конструкций до полной готовности. Поскольку площадь дома маленькая, срок его изготовления занимает 2-4 недели!
С завода на участок он будет доставлен со внешней и внутренней отделкой с сантехникой и с кухонной мебелью — мы предлагаем только модульные дома под ключ.
Параллельно с производством модульного дома происходит заливка фундамента.
К моменту завершения изготовления дома, ваш фундамент на участке наберет необходимую прочность, и на него такой коттедж будет установлен с помощью подъемного крана за 1 день!
В этот же день можно завозить мебель (параллельно занимаясь подключением коммуникаций). А на следующий день жарить шашлыки!
За все время производства и монтажа вашего дома, вам не нужно тратить время на оформление строй паспорта, на контроль этапов строительства (как в случае с традиционным строительством дома) – мы максимально сохранили ваше свободное время! И максимально ускорили въезд в новый дом
Качественные и надежные модульные дома
Каркасно-модульные дома мы производим по тем же стандартам качества, по которым производятся наши каркасные дома большей площади. А именно: точная геометрия, герметичность, исключение мостиков холода.
Модульные дома надежные и долговечные, созданные для того, чтобы вы получали удовольствие от жизни, а не тратили время на ремонты.
Две ключевые составляющие высокого качества дома: заводская сборка и качественные материалы
Заводская сборка
Именно заводская сборка во многом обеспечивает высокое качество дома. Она гарантирует:
- максимально точное соответствие всех конструкций проектным значениям,
- максимально точное прилегание всех конструкций дома друг ко другу – поскольку человеческий фактор сводится к минимуму.
Таким образом конструкции модульных домов получаются гарантировано надежными, жесткими, исключаются мостики холода в течении всего срока эксплуатации - одинаково точный результат для каждого дома, благодаря автоматизации процесса.
Проверенные производители
Материалы для дома — стекловата, ОСП, гипсокартон, сайдинг, кровельная мембрана, др. — мы используем проверенных производителей, характеристики которых соответствуют необходимому стандарту качества для строительства каркасных домов. Древесину — влажностью не выше 18%, сертифицированный конструкционный брус.
Современный комфорт
Если к вашему участку подведено электричество – считайте все вопросы комфорта решены. Устройство скважины и септика мы организуем параллельно с заливкой фундамента. А значит в доме будут горячая вода, свет и тепло!
5 КвТ энергии достаточно, что бы в доме были горячая вода, тепло и уют круглый год для семьи из 4х человек.
Мобильный
Самое уникальное свойство таких домов – мобильность. Их можно перевозить на другое место! На более удачный участок, например. Модульные дома купить будет больше желающих благодаря такой «подвижности» - а значит легче его продать при необходимости.
Мы можем доставить в самые различные регионы Украины модульный дом. Киев не ограничивает нас в строительстве.
Выгодная цена на модульный дом
Стоимость для такого коттеджа формируется за счет маленькой площади дома. Хотя коттедж бюджетный, мы делаем его таким же качественным, как и обычные дома, о чем писали выше. В нем исключены сырость, трещины, скрип и прогиб пола, сквозняки.Ваша забота – это дизайн интерьера и уют. Отсутствие ремонтов в течении 2 лет мы гарантируем согласно договора.
Модульные дома — минусы
Компактный размер – пожалуй единственная характеристика, из-за которой многие отнесут такой коттедж в разряд дачных.
Модульный дачный дом, в самом деле не универсальный – он не рассчитан на большую семью, в нем негде переночевать родственникам или шумной компании друзей.
Тем не менее в западных странах есть целое движение — tinу house — миниатюрные дома, чаще всего — это модульные дома (фото очень просто найти по запросу «tinyhouse»). Достаточно много людей считают, что для комфортной жизни достаточно небольшой площади. Зато при этом:
- больше свободногопространства остается вокруг дома, участок «становится больше»
- Существенно экономичнее строить и обслуживать такой дом.
- Меньше налогов придется заплатить (актуально для тех стран, где частные дома облагаются налогом).
Как заказать и получить
Модульный дом купить просто.
- Встреча в офисе. Вы показываете свой участок по документам. Мы согласовываем какие подготовительные работы на участке вы делаете самостоятельно, какие проводим мы.
- Мы выезжаем на участок, чтобы убедиться в том, что он готов для фундаментных работ.
- Далее следует подписание договора и внесение предоплаты 80% - 100%.
Обратите внимание: для строительства этого дома, вам не нужно получать строительный паспорт и другие разрешительные документы! Мелочь – а приятно. - Сразу после этого на заводе начинается производство вашего модульного дома.
- На участке при этом сразу начинаются подготовительные и фундаментные работы (те из них, которые вы поручили нам).
Через 4 недели все готово для монтажа дома на участке. и каркасно модульный дом полностью готов к отгрузке. - В течении 1 дня крановая техника поставит ваш дом на предварительно подготовленный фундамент.
- Даже в тот же день можно подключать дом ко всем коммуникациям и завозить мебель. Итого строительство модульных домов занимает всего 1 месяц!
- На следующий день можно жарить шашлыки, отправляться на рыбалку, или наслаждать уединением на природе.
Для нас будет настоящей наградой, если полноценную счастливую загородную жизнь для вас поможет осуществить наш модульный дом! Отзывы о наших домах будем рады получить на этой странице и в нашей группе в фейсбуке.


